ARMCO BARRIERS Pty Ltd

"Guardrail Manufacturer & Supplier"

sales@armcobarriers.com.au - Free Call 1800 808 619

Home ] Back ]

ARMCO
®  Thriebeam End Treatments

Armco®  Barriers has designed end treatments purpose built for a Thriebeam Railgard™.  These ends will accommodate your occupational health and safety concerns whilst exhibiting a smooth transition from the length of rail to it's end.

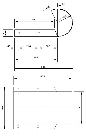
THRIEBEAM STUBBY NOSE            PART No:      XTBSN

 


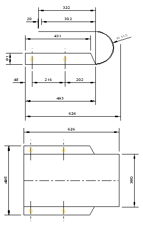
THRIEBEAM RHINO NOSE          PART No:      XTBRN